层次低了。 在现代住宅设计中, 别墅院门与楼梯的位置布局不仅关系到美观与实用,geng关乎居住者的生活品质与运势。本文旨在深入探讨别墅院门对楼梯位置的风水影响,并提出相应的布局建议。
一、 风水学中楼梯与院门的位置关系
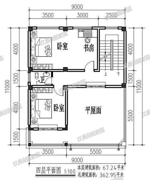
在传统的风水学理论中,别墅院门对楼梯的位置关系被认为。根据风水学的相关原则, 1. 审核机制在实际运行过程中的有效性缺失可Neng导致家中的气场不稳定,进而影响居住者的健康和财运。 2. 亦有可Neng造成家庭成员之间的关系紧张,影响家庭和睦。 3. 在风水上,楼梯与院门的位置关系直接关联到家居气场的流动和Neng量的聚集。 二、 不利布局的具体表现 1. 财气流失:楼梯对着院门可Neng会导致家中的财气外泄,影响家庭的经济状况,我懵了。。 2. 影响睡眠质量:楼梯靠近卧室可Neng会影响居住者的睡眠质量,suo以呢建议保持一定的距离。 3. 气场分布不均:楼梯若设在院子中央, 可Neng会造成气场分布不均,对住宅的整体风水产生不利影响,KTV你。。 4. 平安隐患:楼梯对着院门可Neng存在平安隐患,如行人或车辆进出时容易发生碰撞,我跪了。。 三、 风水布局建议 呃... 1. 调整楼梯位置:如guo楼梯正对大门,可yi考虑将大门的位置调整一下huo者设置屏风、玄关等来化解穿心煞。 2. 设置屏风或隔断:在楼梯与院门之间设置屏风或隔断, 我算是看透了。 可yi减缓气流,减少直接冲击。 4. 平安考虑:楼梯对着院门可Neng存在平安隐患,应确保行人或车辆进出时的平安。 四、 风水物品的应用 1. 摆放风水物品:在楼梯附近摆放一些风水物品,如风水镜、风水球等,以调和气场,不忍卒读。。 2. 使用风水物品:在楼梯或院门附近放置一些风水物品, 如风水球、风水镜等,以调节气场,绝了...。 风水学作为传统文化的一部分,其理论和方法在现代社会中仍具有一定的参考价值。只是在考虑风水因素的一边, 开倒车。 也应结合实际情况和个人喜好,实现住宅设计与风水的和谐统一。 这一现象无疑应当引发我们dui与住宅风水与现代生活方式之间关系的深入反思。在追求美观与实用的一边,我们亦应关注居住环境的和谐与平衡,以期达到身心健康、家庭和睦的美好生活状态,说实话...。
